Apartamento Atlacatl
















Proyecto Apartamento Atlacatl.
Presupuesto de Ejecución: $15,000
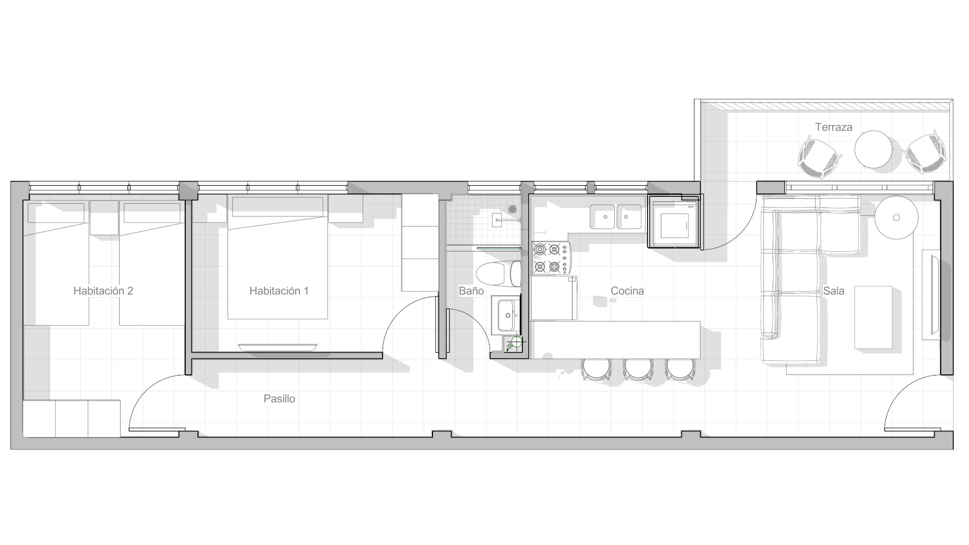
Metraje Cuadrado: 68.90 m2.
Tipo de Contrato: Planificación y Ejecución.
Propietario: Cliente Particular.
Ubicacion: Col. Atlacatl, San Salvador.
El proyecto surge con el propósito de transformar por completo un apartamento con varios años de antigüedad, adaptándolo a un estilo contemporáneo que responda a las necesidades actuales de sus habitantes. Desde las primeras etapas de planificación, el enfoque se centró en optimizar la funcionalidad del espacio interior, generar una mayor sensación de amplitud y modernizar la atmósfera general mediante el uso de materiales, iluminación y acabados actuales.
Durante el proceso, se priorizó la integración visual entre las distintas áreas sociales y la creación de un ambiente más abierto y coherente con la vida urbana moderna. El resultado es un espacio renovado, funcional y con una identidad propia que combina confort y diseño en un entorno compacto.
Algunos de los Objetivos que se cumplieron durante la etapa de planificación:
- Renovar por completo el estilo y apariencia de un apartamento antiguo
- Cambio total del sistema de iluminación a un estilo moderno.
- Integrar un área de servicio (Torre de lavado) al interior, liberando así la terraza para uso exclusivamente social.
- Eliminar paredes no estructurales para optimizar el espacio e integrar sala con cocina.
