Buenaventura Ro


















Buenaventura Ro
Presupuesto de Ejecución: $70,000.00
Metraje Cuadrado: 200.00 m2.
Tipo de Contrato: Planificación.
Propietario: Cliente Particular.
Ubicacion: Planes de Renderos, San Salvador.
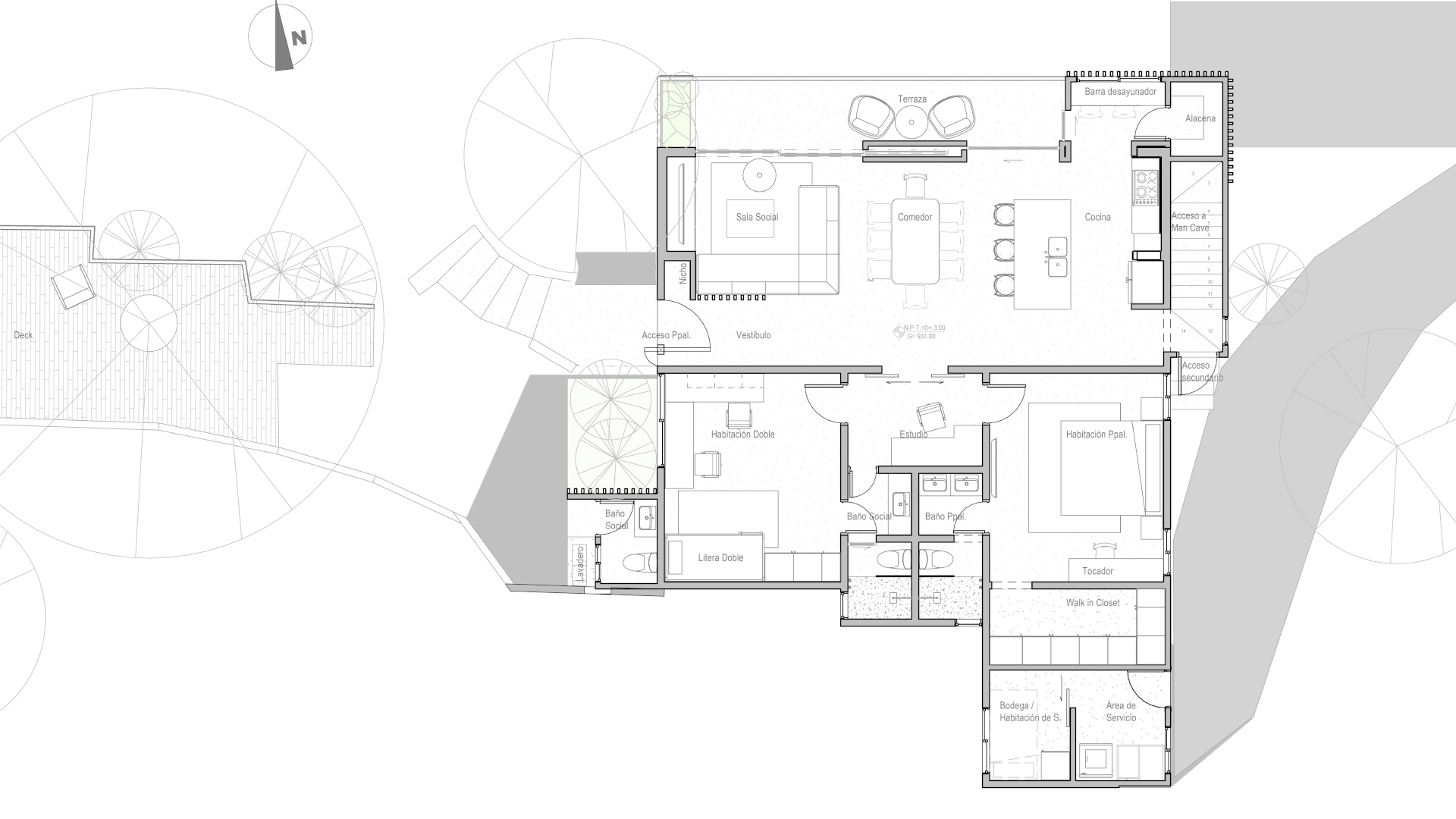
Ubicado en una zona con un entorno natural privilegiado, este proyecto se desarrolló con el objetivo de reinterpretar una vivienda existente y adaptarla a un estilo de vida contemporáneo. La propuesta busca rescatar el valor estructural original, aprovechando al máximo su potencial para generar espacios modernos, funcionales y visualmente conectados con el paisaje circundante.
Durante la etapa de planificación, se plantearon soluciones que equilibran la renovación arquitectónica con la eficiencia constructiva, optimizando recursos y mejorando la experiencia espacial de los usuarios. El diseño propone una vivienda abierta, luminosa y con una relación directa entre el interior y las vistas naturales del entorno.
Algunos de los Objetivos que se cumplieron durante la etapa de planificación:
- Aprovechar al máximo la estructura de una casa existente para adaptar una vivienda moderna
- Transformar un área de servicio en un espacio privado (Man Cave).
- Proponer un área social abierta y brindar al interior el máximo de vista posible.
