Bungalow Lago de Coatepeque






















Proyecto Bungalow Lago de Coatepeque
Presupuesto de Ejecución: $85,000.00
Metraje Cuadrado: 80.00 m2.
Tipo de Contrato: Planificación y Ejecución.
Propietario: Cliente Extranjero (USA).
Ubicacion: Lago de Coatepeque, Santa Ana.
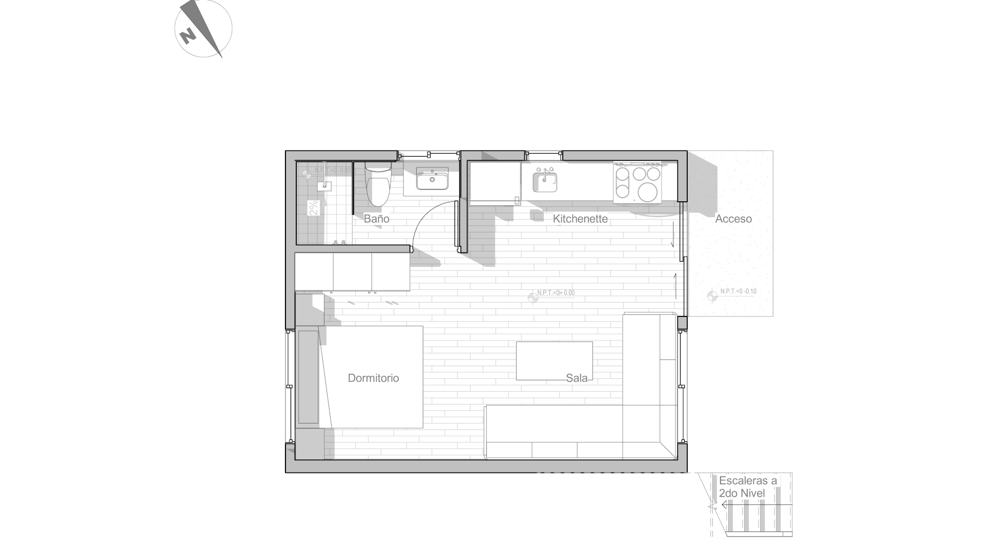
Con una ubicación privilegiada frente al Lago de Coatepeque, este proyecto surge como una propuesta de vivienda temporal enfocada en la simplicidad constructiva y el máximo aprovechamiento del entorno natural. Desde su concepción, la planificación se orientó a crear un espacio funcional y confortable que permitiera disfrutar plenamente de las vistas y el ambiente del lago, manteniendo una relación directa entre el interior y el paisaje circundante.
La propuesta arquitectónica se desarrolló en dos niveles, cuidando la orientación del volumen principal para obtener la mejor visual hacia el lago y cumplir con todos los requerimientos técnicos y normativos de la zona. El resultado es un diseño esencial, eficiente y en armonía con el entorno, ideal para el descanso y disfrute del propietario y su familia.
Algunos de los Objetivos que se cumplieron durante la etapa de planificación:
- Brindar una solución arquitectónica básica, pero que permitiera alojamiento temporal goce del entorno al propietario y su familia.
- Cumplimiento total de las normativas y requerimientos actuales para el otorgamiento de permisos de construcción en esa zona.
- Propuesta arquitectónica en 2 niveles y con una orientación específica para lograr la máxima visual posible hacia el lago.
