Hilasal, El Encuentro S.A.








Proyecto: Hilasal, El Encuentro S.A.
Presupuesto de Ejecución: $19,000.00
Metraje Cuadrado: 66.00 m2.
Tipo de Contrato: Planificación y Ejecución.
Propietario: Hilasal SA de CV.
Ubicacion: Centro Comercial El Encuentro Santa Ana.
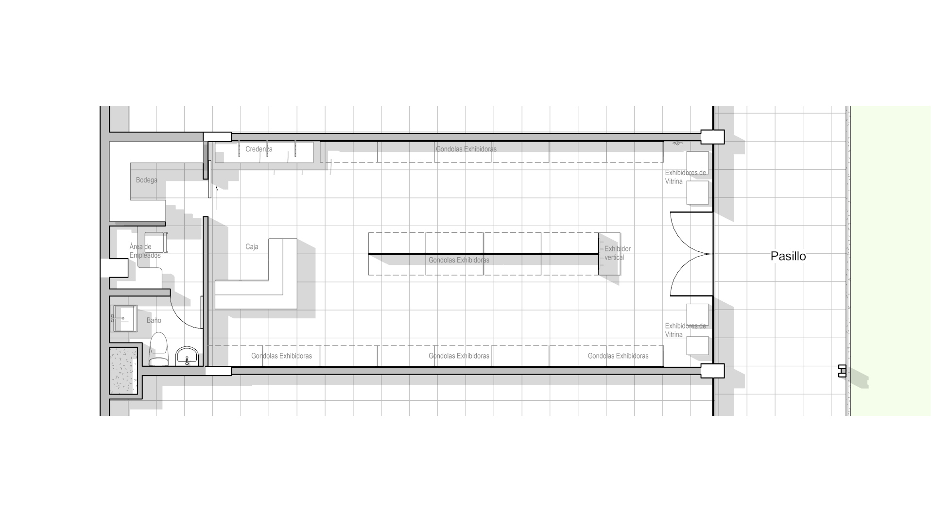
Este proyecto consistió en el desarrollo integral de una nueva sucursal para la reconocida marca Hilasal dentro del Centro Comercial El Encuentro, en Santa Ana. El objetivo principal fue concebir un espacio comercial moderno, eficiente y con una identidad coherente con la imagen corporativa de la marca, garantizando al mismo tiempo un balance óptimo entre calidad, costo y funcionalidad.
Durante la etapa de planificación, se elaboró una propuesta integral que abarcó arquitectura, iluminación, mobiliario, rotulación e instalaciones especiales, asegurando la coordinación entre todos los elementos técnicos y estéticos del proyecto. Además, se cumplió de forma rigurosa con los lineamientos y criterios de diseño exigidos por la administración del centro comercial, logrando la aprobación y un resultado que refuerza la presencia institucional de la marca
Algunos de los Objetivos que se cumplieron durante la etapa de planificación:
- Propuesta de diseño moderna de costos balanceados
- Presentación Integral del proyecto ante comité; arquitectura, iluminación, mobiliario, instalaciones eléctricas, aires acondicionados, rotulaciones etc.
- Cumplimiento total de los criterios de diseño y gestión para aprobación por parte del centro comercial El Encuentro.
